PROJET AUGAGNEUR

Une approche méthodique et rigoureuse

Conception technique & optimisation des espaces

Ce projet illustre une facette essentielle de mon métier : une approche qui dépasse largement la décoration pour intégrer une maîtrise complète de la conception technique.

L’objectif n’était pas de repenser l’esthétique globale du lieu, mais d’accompagner mes clients dans la définition précise de leur projet à travers la production de plans techniques détaillés et exploitables par les entreprises.

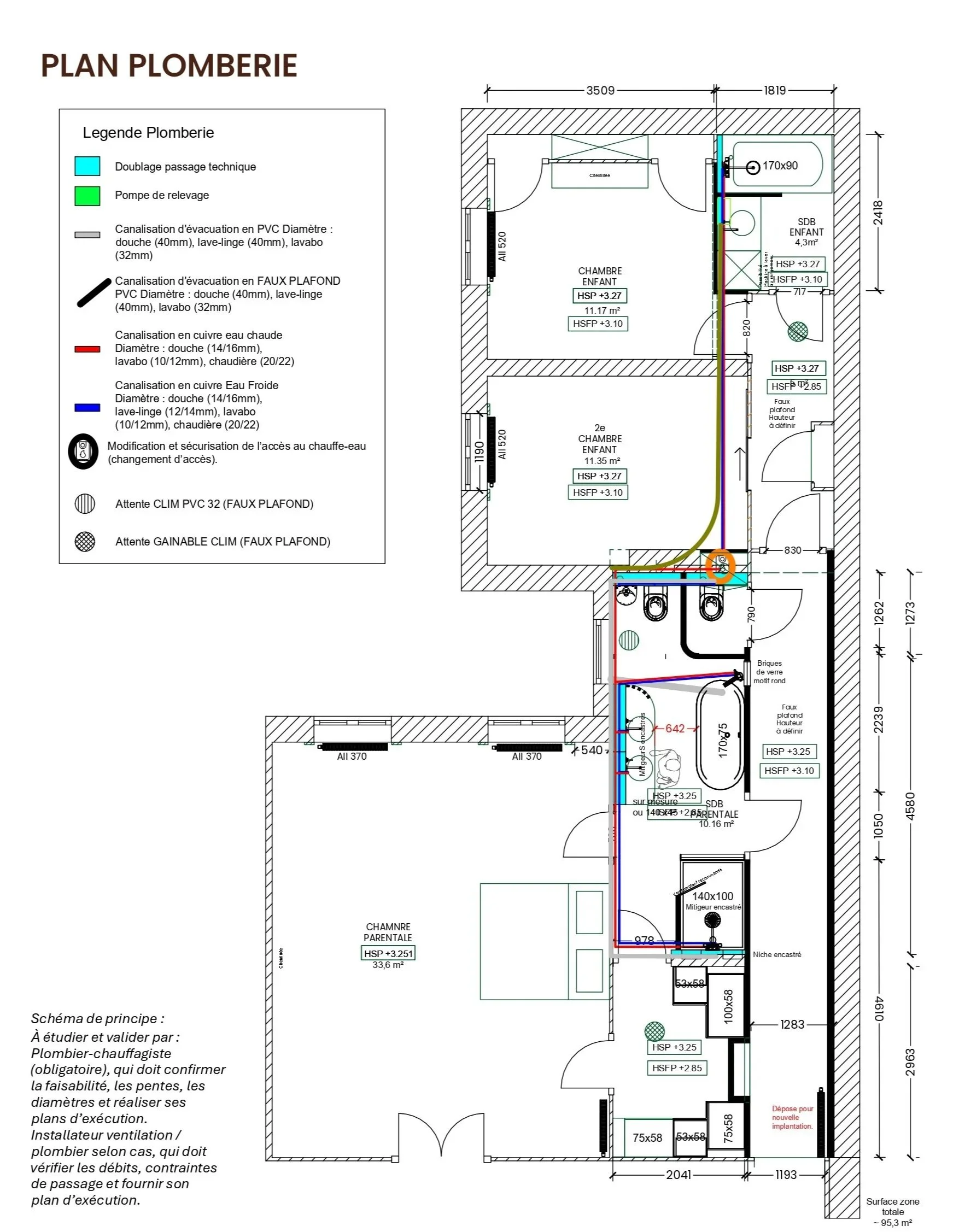
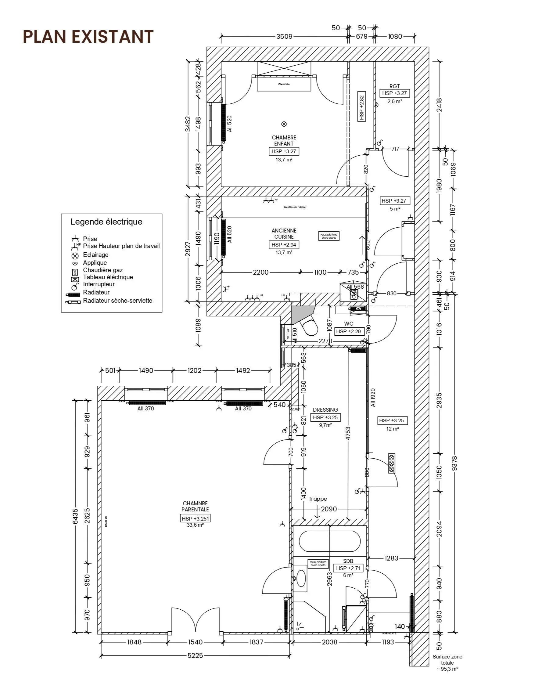
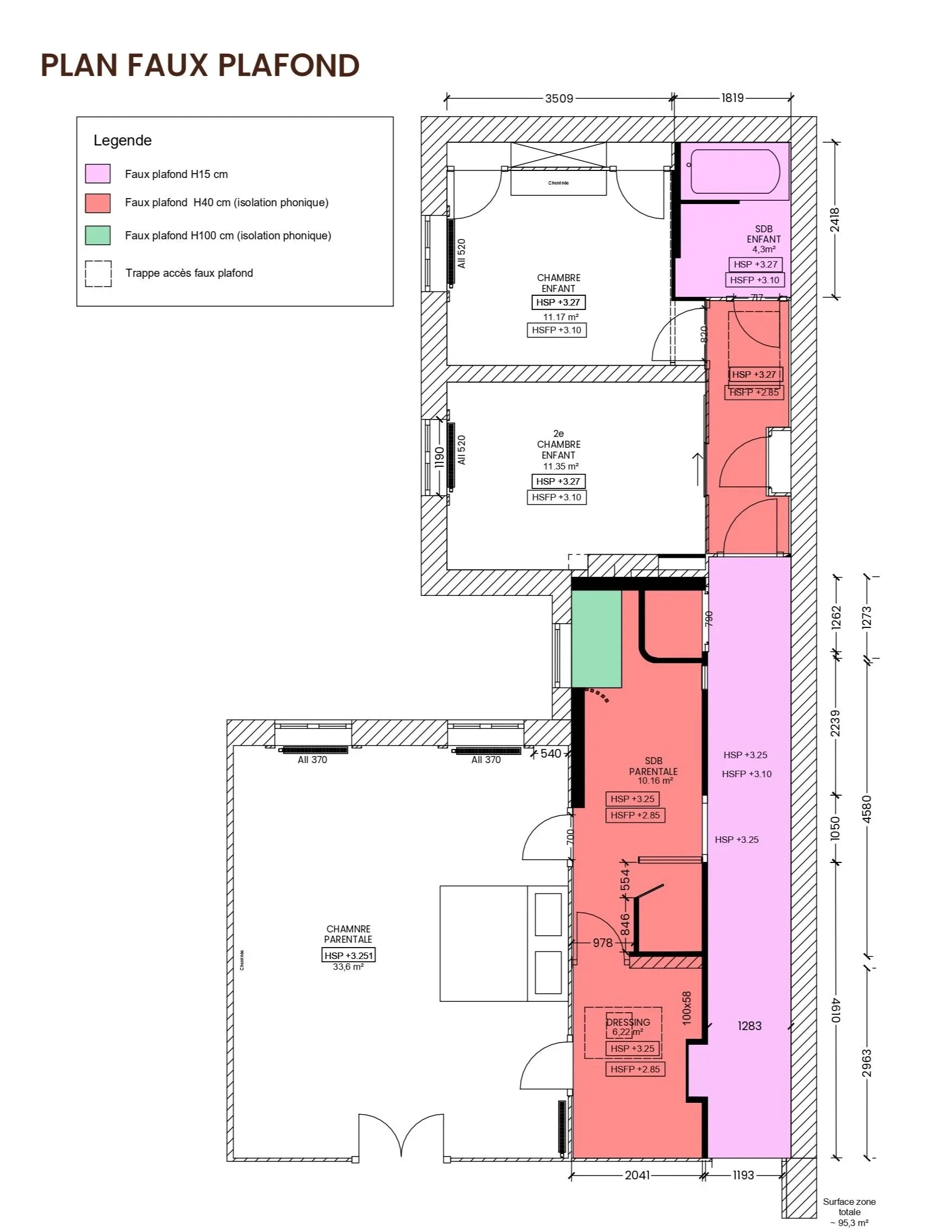
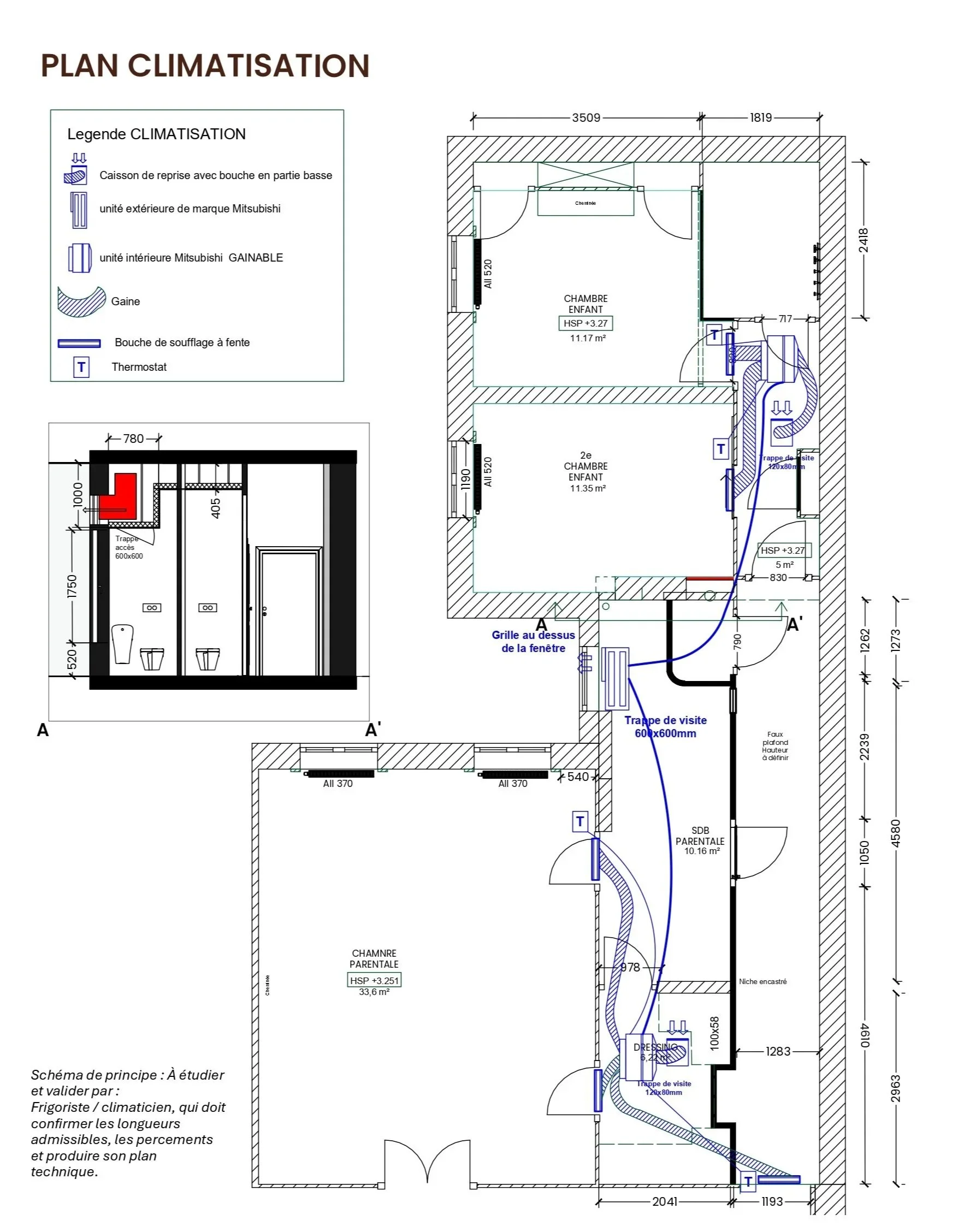
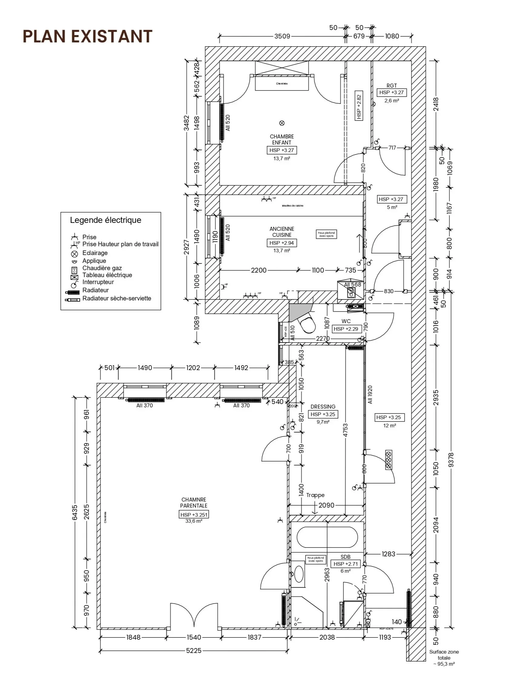
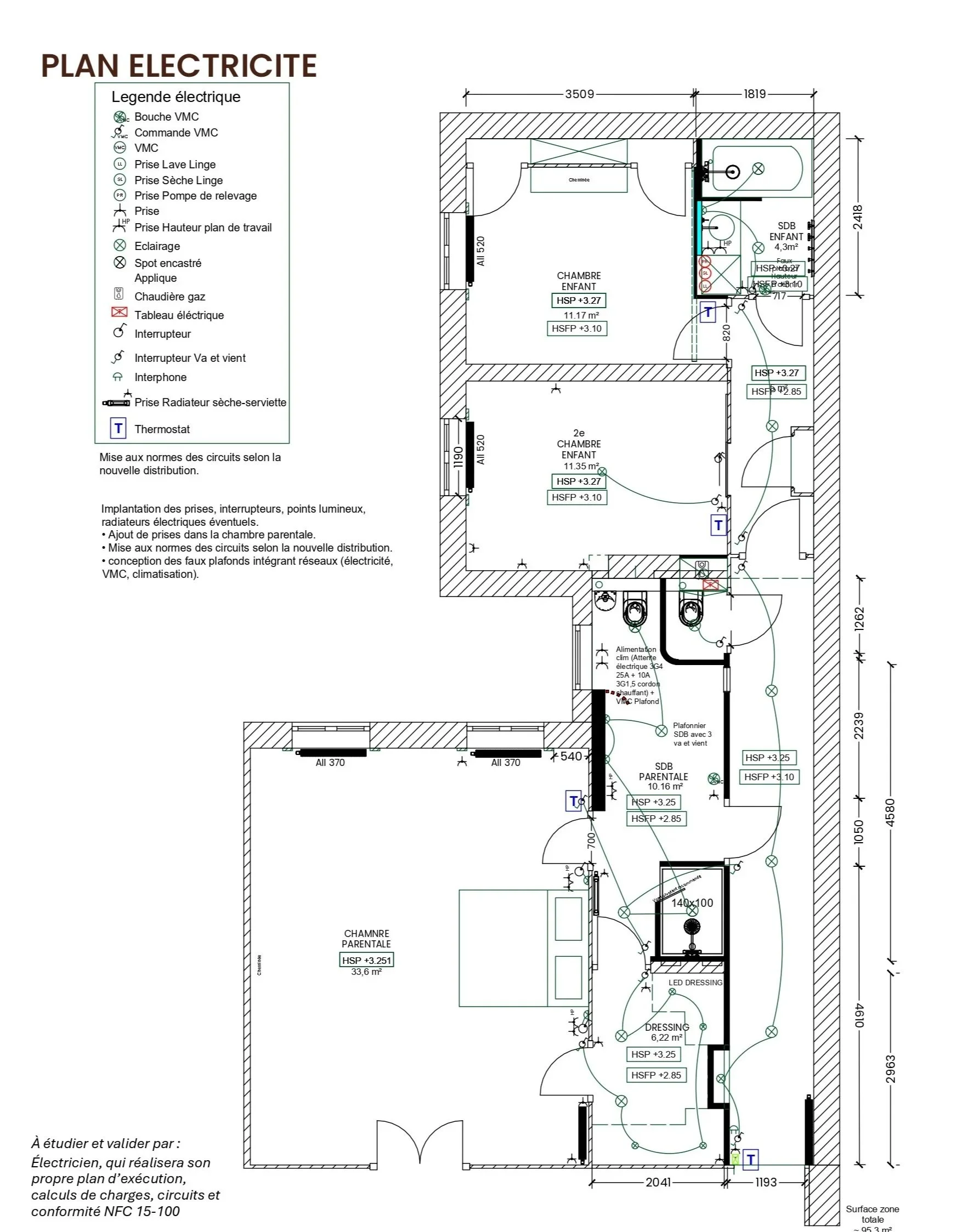
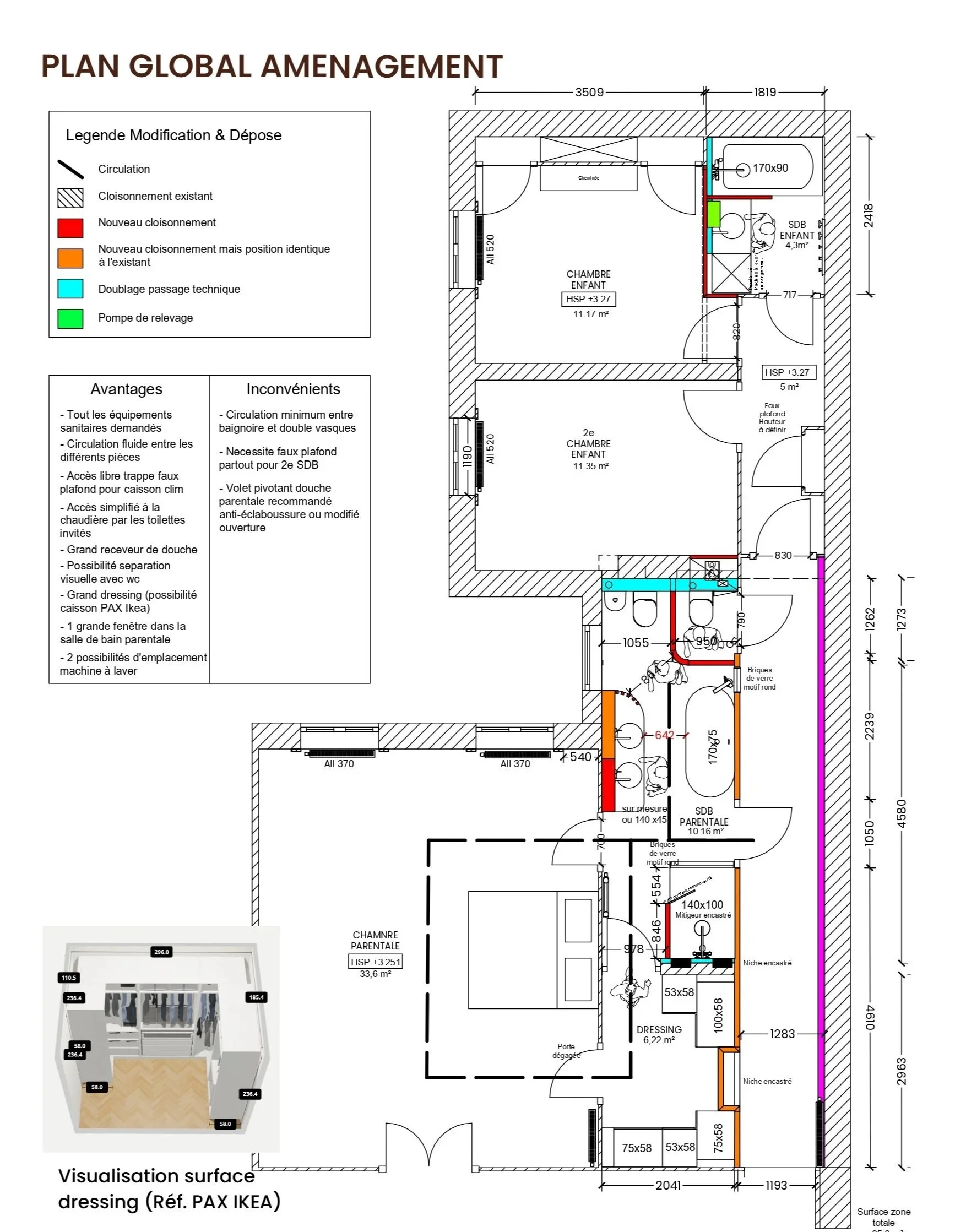
À partir d’un relevé complet sur site, j’ai développé un ensemble de plans permettant de structurer et d’anticiper l’ensemble du chantier :

  • redistribution des espaces et cloisonnement,

  • intégration des réseaux (électricité, plomberie, ventilation, climatisation),

  • conception des faux plafonds et des passages techniques,

  • implantation optimisée des équipements.

Une attention particulière a été portée à la reconfiguration de l’espace enfant, repensé de manière fonctionnelle et rationnelle afin d’optimiser les circulations, les usages et les contraintes techniques existantes.

Des modélisations 3D neutres viennent compléter le projet, permettant de valider les volumes et les proportions sans biais décoratif.

Un projet centré sur la précision, la coordination technique et la faisabilité, démontrant ma capacité à intervenir en amont des travaux, au plus près des enjeux concrets du chantier.

Salle de bain avec baignoire, lavabo, miroir, et revêtement en carrelage beige.
Long couloir intérieur avec murs blancs, sol en bois marqueté, portes noires et fenêtres en haut à gauche.

L’existant

Rénovation appartement Lyon France plans techniques
Couloir intérieur avec un mur blanc, un sol en parquet en chevron, un porte-manteaux avec des vêtements et un sac en orange, et une fenêtre en haut à droite de la photo.
Cuisine moderne avec des armoires blanches, un plan de travail en granit, double évier, planche à découper, et une hotte en acier inoxydable. Il y a un porte-coton et des ustensiles sur le comptoir, une table ronde avec des chaises, une étagère à sèche-linge, et un grand radiateur près d'une porte-fenêtre avec volets roulants.